logo
Wersja dla niedowidzących
  
      
corner
Statystyki
Rejestr zmian
Mapa strony
Instrukcja biuletynu
Pliki do pobrania
corner
  
corner corner
corner corner
 JEDNOSTKI ORGANIZACYJNE
plus Jednostki budżetowe
plus Instytucje kultury
plus Zakłady budżetowe
plus Samodzielny Publiczny Zespół Opieki Zdrowotnej
plus Spółki akcyjne
plus Spółki z o.o.
 TABLICA OGŁOSZEŃ 2023
A A A


Uchwała Nr XXXVI/261/08
Rady Gminy i Miasta Bogatynia
z dnia 30 grudnia 2008 roku

w sprawie przystąpienia do sporządzenia zmian w miejscowym planie zagospodarowania przestrzennego miasta i gminy Bogatynia


Na podstawie art. 18 ust. 2 pkt 15 ustawy z dnia 8 marca 1990 roku o samorządzie gminnym (tekst jedn. z 2001 roku, Dz. U. Nr 142, poz. 1591 z późn. zm.) oraz art. 14 ust. 1 ustawy z dnia 27 marca 2003 roku o planowaniu i zagospodarowaniu przestrzennym (Dz. U. Nr 80, poz. 717 z późn. zm.)

Rada Gminy i Miasta Bogatynia uchwala, co następuje:

§ 1

Przystępuje się do sporządzenia zmian w miejscowym planie zagospodarowania przestrzennego miasta i gminy Bogatynia, uchwalonego Uchwałą Nr XLVIII/347/2002 z dnia 5 sierpnia 2002 roku.

§ 2

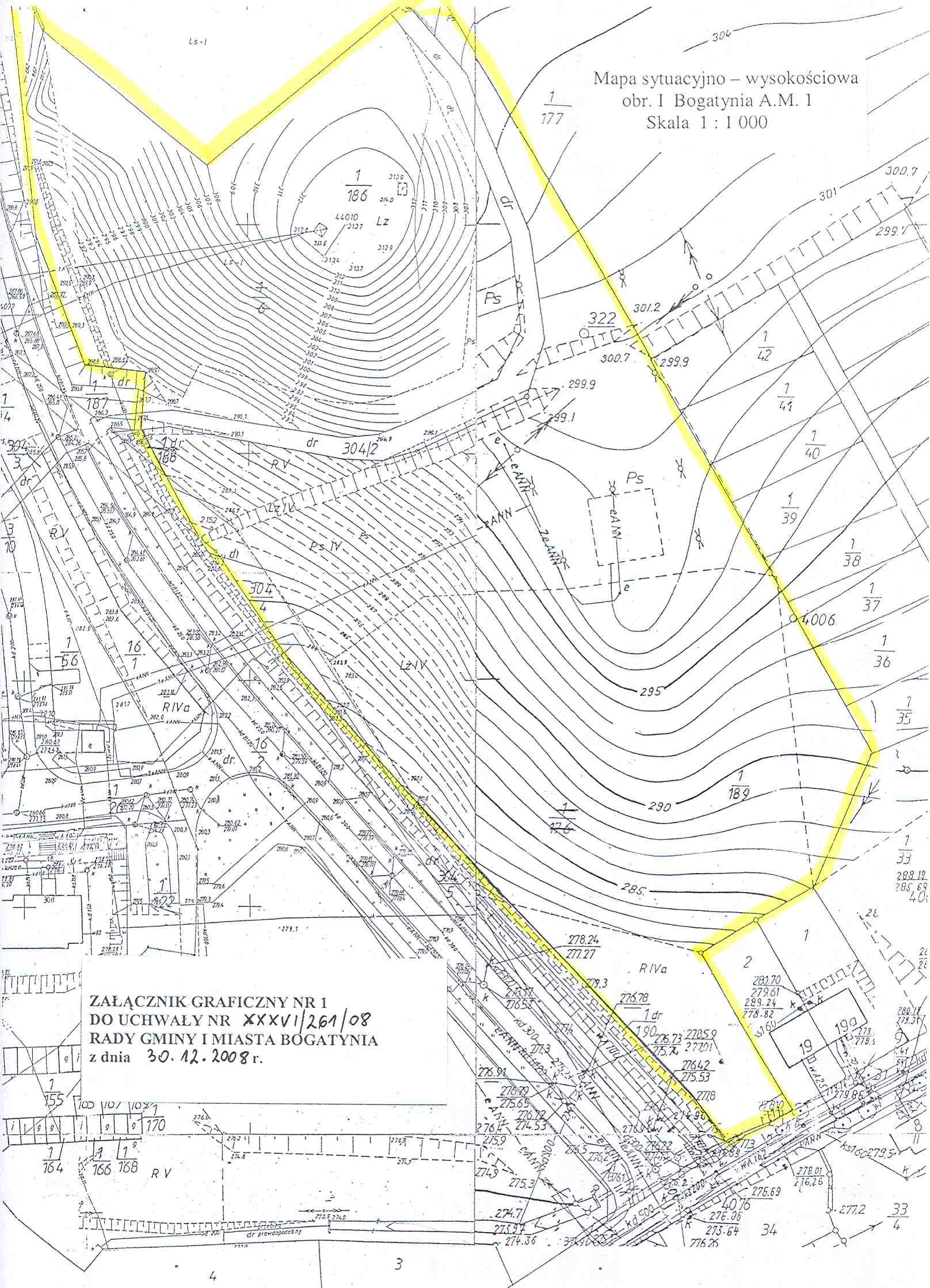
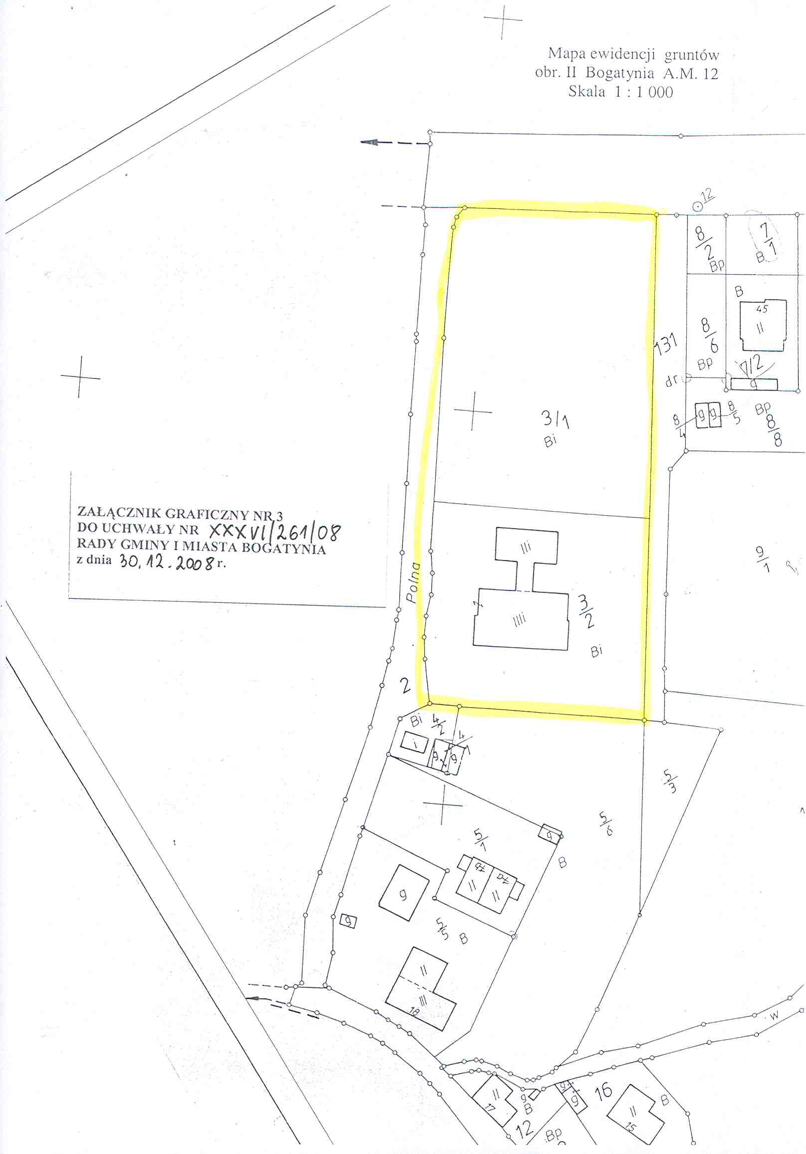
Granice obszarów objętych zmianami w planie przedstawiono na załącznikach graficznych Nr 1 do Nr 10 do niniejszej uchwały.

§ 3

Wykonanie uchwały powierza się Burmistrzowi Miasta i Gminy Bogatynia.

§ 4

Uchwała wchodzi w życie z dniem podjęcia.

 

 

 

 

 

Przewodniczący
Rady Gminy i Miasta Bogatynia

Paweł Szczotka

 

 

Analiza zasadności przystąpienia do sporządzenia zmian w miejscowym planie zagospodarowania przestrzennego dla wyodrębnionych terenów w obszarze
miasta i gminy Bogatynia

I. Informacje o miejscowym planie zagospodarowania przestrzennego.
Dla obszaru miasta i gminy opracowany został miejscowy plan zagospodarowania przestrzennego miasta i gminy Bogatynia, uchwalony Uchwałą Nr XLVIII/347/2002 Rady Gminy i Miasta w Bogatyni z dnia 5 sierpnia 2002 roku (Dz. U. Nr 218 z 16.10.200 roku, poz. 3000).
Prace planistyczne nad planem, prowadzone były w trybie procedury określonej w ustawie z dnia 07 lipca 1994 roku o zagospodarowaniu przestrzennym.
Dokument planu zawiera:
- uchwałę w sprawie uchwalenia planu (zawierające tekstowe ustalenia planu),
- załączniki graficzne do uchwały - rysunki planu od nr 1 do nr 16 (w skali 1:10000, 1:5000 i 1:2000).

II. Analiza ustaleń planistycznych obowiązującego planu.
Podstawą ustaleń zapisów dotychczasowego miejscowego planu zagospodarowania przestrzennego miasta i gminy Bogatynia, w zakresie zasad i warunków zagospodarowania terenów i kształtowania zabudowy, były wnioski właścicieli terenów, inwestorów oraz władz gminy.
Uwzględniono też zamierzenia i programy związane z realizacją ponadlokalnych inwestycji celu publicznego.
Ustalenia formułowane były również z uwzględnieniem:
- postanowień art. 1 ustawy o zagospodarowaniu przestrzennym,
- postanowień przepisów odrębnych (przepisów ustawowych),
- ustaleń Studium uwarunkowań i kierunków zagospodarowania przestrzennego (suikzp) uchwalonego uchwałą Nr XXXII/255/2001 Rady Gminy i Miasta w Bogatyni z dnia 30 stycznia 2001 roku
- ustalenia planu zagospodarowania przestrzennego województwa dolnośląskiego i innych dokumentów dot. planowania strategicznego,
- projektów budowlanych i innych opracowań studialno – projektowych wykonywanych dla obszaru gminy.
W analizie zapisów obecnego planu stwierdzono:
Dla wielu obszarów ustalono warunki i zasady zagospodarowania terenu w formie postanowień ramowych / „ofertowych”. Wynikało to z braku wniosków do planu dla nowych terenów, których lokalizację wskazywało Studium uwarunkowań i kierunków zagospodarowania przestrzennego.
Nie został jednocześnie rozstrzygnięty sposób poprowadzenia drogi Hradek – Sieniawka - Zittau, ze względu na brak właściwych międzynarodowych porozumień.
Dla części obszaru opracowano plan w skali 1:5000 i 1:1000

Analiza wykazała, że ze względów formalno – prawnych obecny plan wymaga aktualizacji.

III. Wnioski o zmianę planu.
W czasie realizacji dotychczasowego planu złożono wiele wniosków o dokonanie aktualizacji planu.
Złożone wnioski zostały szczegółowo przeanalizowane pod kątem wymagań, dotyczących:
- uwarunkowań środowiskowych,
- zasad obowiązujących w planowaniu przestrzennym i zasad ładu przestrzennego,
- zgodności ze Studium uwarunkowań i kierunków zagospodarowania przestrzennego i jego przeprowadzanej aktualizacji.

IV. Stopień zgodności przewidywanych rozwiązań z ustaleniami Studium uwarunkowań i kierunków zagospodarowania przestrzennego.
Przewidywane rozwiązania zmian planu, uwzględniające określone we wnioskach poszczególnych właścicieli terenów postulowane sposoby wykorzystania terenów, są zgodne ze Studium uwarunkowań i kierunków zagospodarowania przestrzennego gminy i miasta Bogatynia oraz z projektem jego aktualizacji.
Granie opracowania zmian dla poszczególnych obszarów wyznaczono na podstawie analizy wniosków oraz uwarunkowań dotyczących terenów, których dotyczą wnioski, jak i analizy potrzeb gminy.
Granice poszczególnych obszarów wyznaczono z dodatkowymi terenami celem właściwego rozwiązania problemów związanych z wprowadzeniem nowych rozstrzygnięć planistycznych / urbanistycznych dla wnioskowanych do zmiany planu terenów.

V. Zasadność przystąpienia do sporządzenia zmian planu
Po przeprowadzonej analizie złożonych wniosków, dokumentów planistycznych, zgodności proponowanych zmian ze Studium...(suikzp), w świetle obowiązujących przepisów o planowaniu i zagospodarowaniu przestrzennym, należy stwierdzić, że przystąpienie do sporządzenia zmian planu jest zasadne.
Dodatkowo wskazuje na następujące okoliczności:
Opracowany w plan w części wykonany został w skali 1:5000 (ustalenia dla miasta Bogatynia). Ustalenia obowiązującego planu konstruowane były w sytuacji, w której, w toku postępowania lokalizacyjnego i realizacyjnego, między planem a pozwoleniem na budowę funkcjonowała decyzja o warunkach zabudowy i zagospodarowania terenu. Decyzja ta była dokumentem, który służył do uściślania i uzupełniania ustaleń planu dotyczących zagospodarowania terenu, kształtowania zabudowy, zasad obsługi w zakresie infrastruktury technicznej i komunikacji, ochrony zdrowia ludzi oraz uwzględniania interesu osób trzecich w oparciu o obowiązujące przepisy odrębne.
Konstrukcja zapisów w opracowaniach planistycznych wykonanych w innej sytuacji formalnej i merytorycznej oraz w skali 1:5000, nie uzupełniona ustaleniami ww. decyzji, stwarza znaczne komplikacje realizacyjne. Przy aktualnym stanie prawnym, ustalenia planu zagospodarowania powinny ściślej odpowiadać regulacjom przepisów odrębnych, a także dokładniej i szczegółowiej uwzględniać uwarunkowania lokalizacyjne danego miejsca i zawierać w sobie zapisy odpowiadające ustaleniom, które w poprzedniej sytuacji formalnej określane były lub mogły być określane, w stosunku do poszczególnych zamierzeń, w decyzji o warunkach zabudowy i zagospodarowania terenu. Dokładniejsze i szczegółowe uwzględnienie uwarunkowań lokalizacyjnych danego miejsca wiąże się z potrzebą wykonania zmian planu w odpowiedniej skali (obowiązująca ustawa zobowiązuje do wykonywania planu skali 1:1000 lub 1:2000).

VI. Zakres prac planistycznych.
Przeprowadzone rozeznanie problemów planistycznych wykazało, że zakres problematyki określony jako obowiązujący w art. 15 ust. 2 ustawy z dnia 27 marca 2003 roku o planowaniu i zagospodarowaniu przestrzennym odpowiada w całości zakresowi zamierzonych prac planistycznych.
W szczególności wymagane będzie opracowanie:
- prognozy oddziaływania na środowisko dotyczącej projektu zmian mpzp.
- opracowanie prognozy skutków ekonomicznych uchwalenia zmian planu.
Granice obszaru opracowania określają załączniki do uchwał.

VII. Materiały geodezyjne niezbędne do opracowania projektów planu /zmian planu.
Opracowanie zostanie wykonane w wymaganej ustawowo skali.
Mapy zasadnicze (sytuacyjno – wysokościowe) i mapa ewidencji gruntów – oraz dane dotyczące użytkowania i władania terenów zostaną pozyskane w Ośrodku Dokumentacji Geodezyjnej i Kartograficznej Starostwa Powiatowego w Zgorzelcu.


 

Załączniki do pobrania: 2009-01-07 09:31:05 - załącznik nr 1 (351.04 kB)
2009-01-07 09:31:46 - załącznik nr 2 (156.95 kB)
2009-01-07 09:35:08 - załącznik nr 3 (107.59 kB)
2009-01-07 09:36:00 - załącznik nr 4 (113.11 kB)

Nazwa dokumentu: Uchwała Nr XXXVI/261/08
Skrócony opis: Uchwała Nr XXXVI/261/08 Rady Gminy i Miasta Bogatynia z dnia 30 grudnia 2008 roku w sprawie przystąpienia do sporządzenia zmian w miejscowym planie zagospodarowania przestrzennego miasta i gminy B
Osoba, która wytworzyła informację: Agnieszka Cisek
Osoba, która odpowiada za treść: Agnieszka Cisek
Osoba, która wprowadzała dane: Agnieszka Cisek
Data wytworzenia informacji: 2009-01-07 09:25:12
Data udostępnienia informacji: 2009-01-07 09:25:12
Data ostatniej aktualizacji: 2009-01-07 09:36:25

Wersja do wydruku...

corner   corner